дома из северного леса в москве и санкт-петербурге с 1998 г.

8(812)241-19-34

Дом из клееного бруса VZ-408 «Феерия»

Дом из клееного бруса VZ-408
Дом из клееного бруса VZ-408
Дом из клееного бруса VZ-408
Дом из клееного бруса VZ-408
Дом из клееного бруса VZ-408
Дом из клееного бруса VZ-408
Mocha Mouss
Золотистая сосна
Серо-голубой
венге
серо-бежевый
серый
синий
холодный голубой
зеленый
Орех
Дом из клееного бруса VZ-408
Дом из клееного бруса VZ-408
Дом из клееного бруса VZ-408

1 ЭТАЖ

Дом из клееного бруса VZ-408

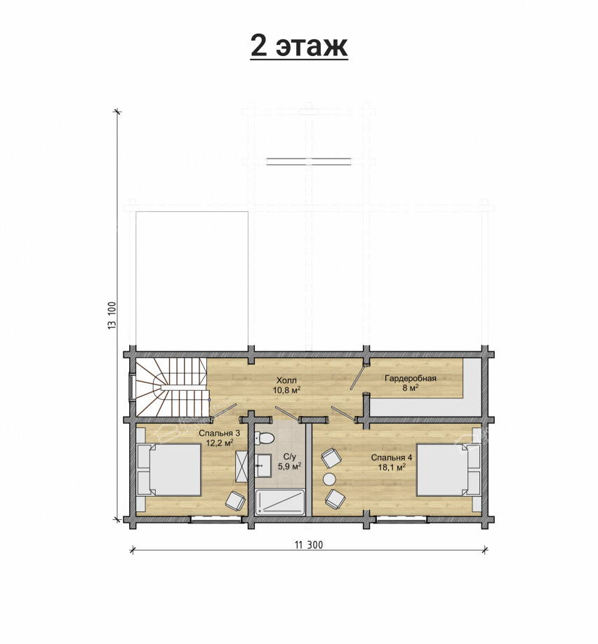
2 ЭТАЖ

Дом из клееного бруса VZ-408
Дом из клееного бруса VZ-408
Mocha Mouss
Золотистая сосна
Серо-голубой
венге
серо-бежевый
серый
синий
холодный голубой
зеленый
Орех
Площадь по осям

Площадь по ПРОЕКТНЫМ ОСЯМ. Фактическая площадь будет зависеть от толщины стен, внутренней планировки и отделки.

210 м²
Материал стен
Клееный брус
5 icon
Комнат
2 icon
Санузла
4 icon
Спальни
1 icon
Терраса
2 icon
Гардеробных
Стоимость дома
По запросу
Площадь по осям
210 м²
Стоимость дома
По запросу

Что входит в стоимость

icon Проектирование icon Замеры участка icon Фундамент icon Стеновой комплект icon Кровля icon Доставка
Проектирование

При строительстве дома проектирование бесплатно!

Индивидуальное проектирование дома с архитектором:

АР (архитектурный раздел) — поэтажные планировки дома; детализированные фасады здания; схема установки окон, план стропильной системы; схема монтажа кровли и т.д.

КД (конструкции деревянные) — высотные отметки проемов, разрезы, развертки стен, межэтажные балки, типовые узлы и т.д.

Схема фундамента — план монтажа монолитной ж/б плиты или свайного поля, план размещения закладных коммуникаций

3D-модель дома — аксонометрические проекции конструктива будущего дома, визуализация экстерьера здания

СПОЗУ — схема планировочной организации земельного участка (схема размещения дома на участке для будущей регистрации)

Смета — детальный расчёт стоимости материалов, отделочных и инженерных работ, доставки и организации стройплощадки

И еще 3 раздела...

Замеры участка

Поможем правильно расположить дом с учетом особенностей участка

Осмотр участка с опытным прорабом:

Проведение анализа грунта: пробное бурение, изучение состава почвы, толщины плодородного слоя и уровня грунтовых вод на пятне застройки
для правильного выбора типа фундамента

Обследование рельефа участка, перепадов на будущем пятне застройки, разметка поворотных точек СПОЗУ, зарисовка схемы расположения дома

Обсуждение с заказчиком зон для сохранения зелёных насаждений

Проверка доступа к воде, электричеству, канализации и другим инженерным системам, влияющим на строительство и смету

Проверка подъездных путей - оценка возможности проезда строительной техники и доставки материалов без повреждения ландшафта и препятствий

Согласование зон хранения стройматериалов, установки бытовок и временных сооружений

Рекомендации по размещению дома на участке на основании анализа местности: особенностей ландшафта, розы ветров

И еще 6 важных пунктов...

Фундамент

Гарантия на фундаменты от 30 лет по договору!

Надёжный фундамент:

Монолитные забивные ЖБ сваи, ГОСТ (150х150 мм / L - 3000 мм)

Другие доступные варианты фундаментов:

Монолитный железобетонный ленточный фундамент 400х600 мм

Монолитная железобетонная плита 250 мм с верхним обвязочным ростверком 200 мм (*для участков с перепадом высот)

Комбинированный фундамент: монолитная плита 250 мм, залитая поверх забивных ЖБ свай (*для участков с торфяными грунтами)

Винтовые сваи 108 мм и 133 мм с последующим диагональным укреплением проф.трубой и швеллером (*для сложных грунтов)

Монолитная балка 300х400 мм по забивным железобетонным сваям

Комбинированный фундамент: монолитная лента 300х400 мм с обратной засыпкой и заливкой монолитной плиты 200 мм

И ещё 3 доступных варианта…

Стеновой комплект

Собственное сырьё – гарантия фиксированной стоимости

Домокомплект из качественного клееного бруса:

Древесина I сорта отобрана на собственных делянках «Вологодского зодчества» специально для производства клееного бруса

Бережная сушка пиломатериала в камерах «Mühlböck Vanicek» по мягкому европейскому режиму сушки «Quality» позволяет снять внутреннее напряжение в пиломатериале

Профилирование бруса - профиль «под утеплитель» с двойным шипом (типоразмер 190h x 160 мм) и нарезка чаш со скрытым тепловым замком «лабиринт», исключающий продувание углов дома

Межвенцовый утеплитель - саморасширяющийся «Политерм»
гарантирует тепло в доме и минимальные затраты на отопление

Сборка домокомплекта:

Профессиональная сборка дома бригадой «Вологодское зодчество»

Техника для сборки домокомплекта (кран, подъёмные механизмы)

И еще 13 позиций...

Кровля

Бригады с опытом от 15 лет

Кровля с гарантией от протекания:

Металлочерепица «GrandLine» с полимерным покрытием (толщина покрытия — 25 мкм, толщина металла — 0,5 мм, защитный слой Zn 140 г/кв.м.)

Монтаж кровли опытной бригадой компании

Трехслойная гидро-ветро-влагозащитная мембрана с защитными слоями из первичного нетканого полипропилена и функционального слоя термопластичного полиуретана с высокой степенью упругости

Усиленная стропильная система из бруса камерной сушки дискового напила с улучшенной геометрией по технологии «на скользящие опоры», гарантирующую правильную усадку кровли

Обработка всех пиломатериалов огне-био-защитными составами
I категории

Усиленные скользящие опоры, оцинкованные крепёжные уголки, метизы и иные расходные материалы для сборки кровли

Пенополиуретановая шумоизоляционная лента под контр-обрешётку

И ещё 7 позиций…

Доставка

Гарантия скорости поставки

Доставка материалов на участок фирменным транспортом «Вологодское зодчество»

Все материалы всегда вовремя! Мы настроили регулярное сообщение между Москвой, Петербургом и нашим производством в городе Вологда.

Мы выполняем более 18 рейсов в неделю. Это позволяет не зависеть от сторонних логистических компаний и соблюдать строительный график производства работ на объектах компании.

Все материалы надёжно упакованы в специализированные транспортные паллеты – это гарантия защиты от механических повреждений, влаги и других внешних воздействий на протяжении всего строительства.

Оформление товарно-транспортных накладных, счетов-фактуры, пропусков и иных транспортных документов производится сотрудниками компании. Наши застройщики не тратят личное время благодаря сервису компании.

Приёмка и разгрузка материалов производится прорабами компании, при участии квалифицированной бригады, что ускоряет начало строительства.

И еще 5 важных фактов...

Что входит в стоимость

icon

Проектирование

Проектирование

При строительстве дома проектирование бесплатно!

Индивидуальное проектирование дома с архитектором:

АР (архитектурный раздел) — поэтажные планировки дома; детализированные фасады здания; схема установки окон, план стропильной системы; схема монтажа кровли и т.д.

КД (конструкции деревянные) — высотные отметки проемов, разрезы, развертки стен, межэтажные балки, типовые узлы и т.д.

Схема фундамента — план монтажа монолитной ж/б плиты или свайного поля, план размещения закладных коммуникаций

3D-модель дома — аксонометрические проекции конструктива будущего дома, визуализация экстерьера здания

СПОЗУ — схема планировочной организации земельного участка (схема размещения дома на участке для будущей регистрации)

Смета — детальный расчёт стоимости материалов, отделочных и инженерных работ, доставки и организации стройплощадки

icon

Замеры участка

Замеры участка

Поможем правильно расположить дом с учетом особенностей участка

Осмотр участка с опытным прорабом:

Проведение анализа грунта: пробное бурение, изучение состава почвы, толщины плодородного слоя и уровня грунтовых вод на пятне застройки
для правильного выбора типа фундамента

Обследование рельефа участка, перепадов на будущем пятне застройки, разметка поворотных точек СПОЗУ, зарисовка схемы расположения дома

Обсуждение с заказчиком зон для сохранения зелёных насаждений

Проверка доступа к воде, электричеству, канализации и другим инженерным системам, влияющим на строительство и смету

Проверка подъездных путей - оценка возможности проезда строительной техники и доставки материалов без повреждения ландшафта и препятствий

Согласование зон хранения стройматериалов, установки бытовок и временных сооружений

Рекомендации по размещению дома на участке на основании анализа местности: особенностей ландшафта, розы ветров

icon

Фундамент

Фундамент

Гарантия на фундаменты от 30 лет по договору!

Надёжный фундамент:

Монолитные забивные ЖБ сваи, ГОСТ (150х150 мм / L - 3000 мм)

Другие доступные варианты фундаментов:

Монолитный железобетонный ленточный фундамент 400х600 мм

Монолитная железобетонная плита 250 мм с верхним обвязочным ростверком 200 мм (*для участков с перепадом высот)

Комбинированный фундамент: монолитная плита 250 мм, залитая поверх забивных ЖБ свай (*для участков с торфяными грунтами)

Винтовые сваи 108 мм и 133 мм с последующим диагональным укреплением проф.трубой и швеллером (*для сложных грунтов)

Монолитная балка 300х400 мм по забивным железобетонным сваям

Комбинированный фундамент: монолитная лента 300х400 мм с обратной засыпкой и заливкой монолитной плиты 200 мм

icon

Стеновой комплект

Стеновой комплект

Собственное сырьё – гарантия фиксированной стоимости

Домокомплект из качественного клееного бруса:

Древесина I сорта отобрана на собственных делянках «Вологодского зодчества» специально для производства клееного бруса

Бережная сушка пиломатериала в камерах «Mühlböck Vanicek» по мягкому европейскому режиму сушки «Quality» позволяет снять внутреннее напряжение в пиломатериале

Профилирование бруса - профиль «под утеплитель» с двойным шипом (типоразмер 190h x 160 мм) и нарезка чаш со скрытым тепловым замком «лабиринт», исключающий продувание углов дома

Межвенцовый утеплитель - саморасширяющийся «Политерм»
гарантирует тепло в доме и минимальные затраты на отопление

Сборка домокомплекта:

Профессиональная сборка дома бригадой «Вологодское зодчество»

Техника для сборки домокомплекта (кран, подъёмные механизмы)

icon

Кровля

Кровля

Бригады с опытом от 15 лет

Кровля с гарантией от протекания:

Металлочерепица «GrandLine» с полимерным покрытием (толщина покрытия — 25 мкм, толщина металла — 0,5 мм, защитный слой Zn 140 г/кв.м.)

Монтаж кровли опытной бригадой компании

Трехслойная гидро-ветро-влагозащитная мембрана с защитными слоями из первичного нетканого полипропилена и функционального слоя термопластичного полиуретана с высокой степенью упругости

Усиленная стропильная система из бруса камерной сушки дискового напила с улучшенной геометрией по технологии «на скользящие опоры», гарантирующую правильную усадку кровли

Обработка всех пиломатериалов огне-био-защитными составами
I категории

Усиленные скользящие опоры, оцинкованные крепёжные уголки, метизы и иные расходные материалы для сборки кровли

Пенополиуретановая шумоизоляционная лента под контр-обрешётку

icon

Доставка

Доставка

Гарантия скорости поставки

Доставка материалов на участок фирменным транспортом «Вологодское зодчество»

Все материалы всегда вовремя! Мы настроили регулярное сообщение между Москвой, Петербургом и нашим производством в городе Вологда.

Мы выполняем более 18 рейсов в неделю. Это позволяет не зависеть от сторонних логистических компаний и соблюдать строительный график производства работ на объектах компании.

Все материалы надёжно упакованы в специализированные транспортные паллеты – это гарантия защиты от механических повреждений, влаги и других внешних воздействий на протяжении всего строительства.

Оформление товарно-транспортных накладных, счетов-фактуры, пропусков и иных транспортных документов производится сотрудниками компании. Наши застройщики не тратят личное время благодаря сервису компании.

Приёмка и разгрузка материалов производится прорабами компании, при участии квалифицированной бригады, что ускоряет начало строительства.

icon

30 лет
гарантии

icon

Офис
в г. Санкт-Петербург

icon

Офис
в г. Москва

icon

Индивидуальное
проектирование

О проекте

Этот двухэтажный дом из клееного бруса, площадью 210 квадратных метра, представляет собой идеальное сочетание современного дизайна и природной гармонии. Внешний вид дома завораживает своей элегантной простотой и естественной красотой древесины, которая придает ему теплый и уютный вид. Крыша с мягким скатом и аккуратные линии фасада подчеркивают его стиль, а большие панорамные окна, расположенные по всему периметру, наполняют внутренние пространства светом и создают ощущение единства с окружающей природой. Терраса, обрамляющая дом, становится идеальным местом для утреннего кофе или вечерних посиделок с семьей и друзьями, предлагая великолепные виды на сад и близлежащие пейзажи.

Внутреннее пространство дома продумано до мелочей, чтобы обеспечить максимальный комфорт и функциональность. На первом этаже расположена просторная гостиная с высокими потолками и вторым светом, что создает ощущение воздушности и свободы.

Панорамные окна в гостиной позволяют наслаждаться видами на природу, не выходя из дома, а камин добавит уюта и тепла в холодные вечера. Кухня-столовая, соединенная с гостиной, оборудована современной техникой и удобной мебелью, что делает процесс приготовления пищи и семейные обеды настоящим удовольствием. Также на первом этаже находится две из трех спален.

На втором этаже расположена одна уютная спальня, которая имеет свой уникальный дизайн .Общая ванная комната на этаже выполнена в современном стиле и оснащена всем необходимым для релаксации и ухода за собой. Дом из клееного бруса не только экологичен и долговечен, но и создает особую атмосферу уюта и тепла, делая его идеальным местом для жизни и отдыха.

Выберите цвет будущего дома

Дом из клееного бруса VZ-408
Дом из клееного бруса VZ-408
Дом из клееного бруса VZ-408
Дом из клееного бруса VZ-408
Дом из клееного бруса VZ-408
Дом из клееного бруса VZ-408
Дом из клееного бруса VZ-408
Дом из клееного бруса VZ-408
Дом из клееного бруса VZ-408
Дом из клееного бруса VZ-408

А вот и построенные дома:

Лучший одноэтажный дом

Экскурсия по дому «Миллер»: продуманная планировка, уютная атмосфера и комфорт, который ощущается с первых минут.

Двухэтажный дом мечты

Обзор проекта «Флагман» — 170 м² из клееного бруса на монолитной железобетонной плите. Простор, стиль и надёжность в каждом элементе.

В гости к хозяевам «Энея»

Руководитель компании приезжает в готовый дом по проекту ВЗ-329 — компактный и уютный одноэтажный вариант для комфортной загородной жизни.

Больше построенных домов и видео тут

ПОСЕТИТЬ ОБЪЕКТЫ С ПРОРАБОМ

Проверить качество строительства

Выбрать материал для своего дома

Убедиться в квалификации сотрудников

*в Москве и С‑Петербурге

Экскурсия на стройку

Работа компании в режиме онлайн

Все камеры
Строительство дома в к. п. Ели Estate 175 м2 (клееный брус) МСК
Площадка по рубке срубов (Вологодская область, Вологда)
Строительство дома в д. Некрасино 125 м2 (клееный брус) МСК
Строительство бани в к. п. Гридюкино 48 м2 (клееный брус) МСК
Строительство дома в с. Семёновское 74 м2 (клееный брус) МСК
Строительство дома в д. Бекетово 107 м2 (клееный брус) МСК
Вид из офиса
Строительство дома д.Хязельки 106,55 м2 (газобетон) СПб
Строительство дома д. Лупполово 124,89 м2 (газобетон) СПБ
Строительство дома в г. п. Вырица 177,72 м2 (газобетон) СПБ

>25 лет

“Вологодское зодчество” строит дома из собственного леса

В Вологодской области — делянки, производство материалов и домокомплектов.

А строим в Московской, Ленинградской
и близлежащих областях.

Для этого в Москве и Петербурге
открыли офисы.

img map img

Ленинградская
область

Вологодская
область

Московская
область

С нами вы гораздо ближе к своему дому — и без “сюрпризов”

Смета окончательная

после подписания договора

Она не меняется ни на рубль, даже если сезонные цены и цены на материалы вырастут

Оплата по графику

с приемкой каждого этапа

Вы знаете, когда и сколько именно денег вам понадобится, поэтому можете планировать нагрузку

Ипотека от 6%

благодаря партнерству с РСХБ

Мы аккредитованы в ведущих банках,
наши проекты одобряют +
мы помогаем подобрать подходящий проект

Подробнее об условиях

Мы строим с 1998 года и точно знаем: одинаковых домов не бывает

Даже если мы построим два одинаковых дома «как на картинке», все равно остается разная почва (и фундамент), сезон и срок. Все это влияет на смету.

Но мы можем:
Рассчитать цену
дома

прямо по телефону

Несколько уточняющих вопросов и вы получите реальную цену под ваши параметры.

Посчитать дом
как на картинке

с разбросом 1-2%

Это вариант подойдет, если вы хотите дом точь-в-точь, как на фотографиях проекта.

Оптимизировать дом
под ваш бюджет

без потери качества

В любой понравившийся проект можно внести изменения.

1998

team
Связаться с нами

Буквально за 5 минут разговора вы станете ближе к своему дому.

team
Я согласен на обработку персональных данных

Мы вам позвоним
в течение 10 минут в рабочее время
и душевно пообщаемся.

Свяжитесь с нами в мессенджере — обсудим ваш проект!

Написать в Telegram icon Написать в MAX icon