дома из северного леса в москве и санкт-петербурге с 1998 г.

8(812)241-19-34

Дом из камня VZ-791 «Эверест»

Дом из камня VZ-791
Дом из камня VZ-791
Дом из камня VZ-791
Дом из камня VZ-791
Дом из камня VZ-791
Дом из камня VZ-791
Дом из камня VZ-791

1 ЭТАЖ

Дом из камня VZ-791

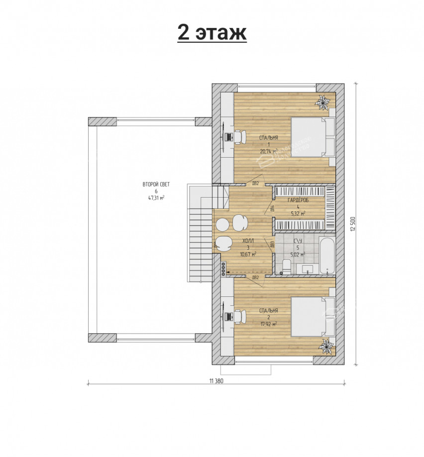
2 ЭТАЖ

Площадь по осям

Площадь по ПРОЕКТНЫМ ОСЯМ. Фактическая площадь будет зависеть от толщины стен, внутренней планировки и отделки.

228 м²
Материал стен
Керамические блоки Porotherm
4 icon
Комнаты
3 icon
Санузла
3 icon
Спальни
1 icon
Терраса
3 icon
Гардеробных
1 icon
Гостиная
Стоимость дома
По запросу
Площадь по осям
228 м²
Стоимость дома
По запросу

Что входит в стоимость

icon Проектирование icon Замеры участка icon Фундамент icon Стеновой комплект icon Кровля icon Доставка
Проектирование

При строительстве дома проектирование бесплатно!

Индивидуальное проектирование дома с архитектором:

АР (архитектурный раздел) — поэтажные планировки дома; детализированные фасады здания; схема установки окон, план стропильной системы; схема монтажа кровли и т.д.

КД (конструкции деревянные) — высотные отметки проемов, разрезы, развертки стен, межэтажные балки, типовые узлы и т.д.

Схема фундамента — план монтажа монолитной ж/б плиты или свайного поля, план размещения закладных коммуникаций

3D-модель дома — аксонометрические проекции конструктива будущего дома, визуализация экстерьера здания

СПОЗУ — схема планировочной организации земельного участка (схема размещения дома на участке для будущей регистрации)

Смета — детальный расчёт стоимости материалов, отделочных и инженерных работ, доставки и организации стройплощадки

И еще 3 раздела...

Замеры участка

Поможем правильно расположить дом с учетом особенностей участка

Осмотр участка с опытным прорабом:

Проведение анализа грунта: пробное бурение, изучение состава почвы, толщины плодородного слоя и уровня грунтовых вод на пятне застройки
для правильного выбора типа фундамента

Обследование рельефа участка, перепадов на будущем пятне застройки, разметка поворотных точек СПОЗУ, зарисовка схемы расположения дома

Обсуждение с заказчиком зон для сохранения зелёных насаждений

Проверка доступа к воде, электричеству, канализации и другим инженерным системам, влияющим на строительство и смету

Проверка подъездных путей - оценка возможности проезда строительной техники и доставки материалов без повреждения ландшафта и препятствий

Согласование зон хранения стройматериалов, установки бытовок и временных сооружений

Рекомендации по размещению дома на участке на основании анализа местности: особенностей ландшафта, розы ветров

И еще 6 важных пунктов...

Фундамент

Гарантия на фундаменты от 30 лет по договору!

Надёжный фундамент:

Монолитная железобетонная плита 200 мм с ростверком 400 мм вниз армируется для равномерного распределения нагрузок и предотвращения усадочных трещин

Вертикальная планировка участка выполняются с учётом уклонов и рельефа, чтобы обеспечить стабильное основание для фундамента

Разметка осей и привязка координат, что гарантирует правильное расположение стен и перекрытий без смещений, позволяя соблюсти все строительные нормы и обеспечивая идеальную геометрию дома

Подготовка основания и ввод необходимых коммуникаций, при этом заранее устанавливаются закладные элементы для будущих коммуникаций — воды, канализации и электричества, что упрощает последующие монтажные работы и экономит время.

Армирование каркаса, чтобы повысить прочность и устойчивость к нагрузкам

Заливка бетоном и приёмка инженером технического надзора

И ещё 3 пункта…

Стеновой комплект

Только проверенные производители!

Домокомплект из тёплой керамики Porotherm 380 TERMO:

Надёжные и энергоэффективные стены из блоков Porotherm, обеспечивающие отличную теплоизоляцию и долговечность конструкции, минимизируя теплопотери

Наружные и внутренние несущие стены из тёплой керамики Porotherm

Монтаж перегородок, выполненный строго по проекту

Устройство перемычек и армопояса обеспечивает дополнительную прочность конструкции и защиту от трещин

Сборка домокомплекта:

Профессиональная сборка дома бригадой «Вологодское зодчество»

Полный контроль качества и приёмка инженером технического надзора на каждом этапе сборки

И еще 13 позиций...

Кровля

Бригады с опытом от 15 лет

Кровля с финишным покрытием:

Металлочерепица «GrandLine» 0,5 мм с полимерным покрытием

Монтаж обрешетки и кровельного покрытия с соблюдением технологических зазоров опытной бригадой компании "Вологодское Зодчество"

Деревянное утеплённое перекрытие и стропильная система из сухой, строганной доски камерной сушки обеспечивают надежность конструкции и правильную геометрию кровли

Обработка всех пиломатериалов антисептиком I категории

Паро- и гидроветрозащитная мембрана сохраняет утеплитель сухим и предотвращает сквозняки, создавая комфортный микроклимат в доме

Снегозадержатели и монтаж вентвыходов устанавливаются для безопасного схода снега и нормальной вентиляции, предотвращая образование наледи и обеспечивая правильный воздухообмен

И ещё 7 позиций…

Доставка

Гарантия скорости поставки

Доставка материалов на участок фирменным транспортом «Вологодское зодчество»:

Мы выполняем более 18 рейсов в неделю. Это позволяет не зависеть от сторонних логистических компаний и соблюдать строительный график производства работ на объектах компании.

Все материалы надёжно упакованы в специализированные транспортные паллеты – это гарантия защиты от механических повреждений, влаги и других внешних воздействий на протяжении всего строительства.

Оформление товарно-транспортных накладных, счетов-фактуры, пропусков и иных транспортных документов производится сотрудниками компании. Наши застройщики не тратят личное время благодаря сервису компании.

Приёмка и разгрузка материалов производится прорабами компании, при участии квалифицированной бригады, что ускоряет начало строительства.

Все материалы всегда вовремя! Мы настроили регулярную доставку между Москвой, Петербургом и нашими проверенными поставщиками

И еще 5 важных фактов...

Что входит в стоимость

icon

Проектирование

Проектирование

При строительстве дома проектирование бесплатно!

Индивидуальное проектирование дома с архитектором:

АР (архитектурный раздел) — поэтажные планировки дома; детализированные фасады здания; схема установки окон, план стропильной системы; схема монтажа кровли и т.д.

КД (конструкции деревянные) — высотные отметки проемов, разрезы, развертки стен, межэтажные балки, типовые узлы и т.д.

Схема фундамента — план монтажа монолитной ж/б плиты или свайного поля, план размещения закладных коммуникаций

3D-модель дома — аксонометрические проекции конструктива будущего дома, визуализация экстерьера здания

СПОЗУ — схема планировочной организации земельного участка (схема размещения дома на участке для будущей регистрации)

Смета — детальный расчёт стоимости материалов, отделочных и инженерных работ, доставки и организации стройплощадки

icon

Замеры участка

Замеры участка

Поможем правильно расположить дом с учетом особенностей участка

Осмотр участка с опытным прорабом:

Проведение анализа грунта: пробное бурение, изучение состава почвы, толщины плодородного слоя и уровня грунтовых вод на пятне застройки
для правильного выбора типа фундамента

Обследование рельефа участка, перепадов на будущем пятне застройки, разметка поворотных точек СПОЗУ, зарисовка схемы расположения дома

Обсуждение с заказчиком зон для сохранения зелёных насаждений

Проверка доступа к воде, электричеству, канализации и другим инженерным системам, влияющим на строительство и смету

Проверка подъездных путей - оценка возможности проезда строительной техники и доставки материалов без повреждения ландшафта и препятствий

Согласование зон хранения стройматериалов, установки бытовок и временных сооружений

Рекомендации по размещению дома на участке на основании анализа местности: особенностей ландшафта, розы ветров

icon

Фундамент

Фундамент

Гарантия на фундаменты от 30 лет по договору!

Надёжный фундамент:

Монолитная железобетонная плита 200 мм с ростверком 400 мм вниз армируется для равномерного распределения нагрузок и предотвращения усадочных трещин

Вертикальная планировка участка выполняются с учётом уклонов и рельефа, чтобы обеспечить стабильное основание для фундамента

Разметка осей и привязка координат, что гарантирует правильное расположение стен и перекрытий без смещений, позволяя соблюсти все строительные нормы и обеспечивая идеальную геометрию дома

Подготовка основания и ввод необходимых коммуникаций, при этом заранее устанавливаются закладные элементы для будущих коммуникаций — воды, канализации и электричества, что упрощает последующие монтажные работы и экономит время.

Армирование каркаса, чтобы повысить прочность и устойчивость к нагрузкам

Заливка бетоном и приёмка инженером технического надзора

icon

Стеновой комплект

Стеновой комплект

Только проверенные производители!

Домокомплект из тёплой керамики Porotherm 380 TERMO:

Надёжные и энергоэффективные стены из блоков Porotherm, обеспечивающие отличную теплоизоляцию и долговечность конструкции, минимизируя теплопотери

Наружные и внутренние несущие стены из тёплой керамики Porotherm

Монтаж перегородок, выполненный строго по проекту

Устройство перемычек и армопояса обеспечивает дополнительную прочность конструкции и защиту от трещин

Сборка домокомплекта:

Профессиональная сборка дома бригадой «Вологодское зодчество»

Полный контроль качества и приёмка инженером технического надзора на каждом этапе сборки

icon

Кровля

Кровля

Бригады с опытом от 15 лет

Кровля с финишным покрытием:

Металлочерепица «GrandLine» 0,5 мм с полимерным покрытием

Монтаж обрешетки и кровельного покрытия с соблюдением технологических зазоров опытной бригадой компании "Вологодское Зодчество"

Деревянное утеплённое перекрытие и стропильная система из сухой, строганной доски камерной сушки обеспечивают надежность конструкции и правильную геометрию кровли

Обработка всех пиломатериалов антисептиком I категории

Паро- и гидроветрозащитная мембрана сохраняет утеплитель сухим и предотвращает сквозняки, создавая комфортный микроклимат в доме

Снегозадержатели и монтаж вентвыходов устанавливаются для безопасного схода снега и нормальной вентиляции, предотвращая образование наледи и обеспечивая правильный воздухообмен

icon

Доставка

Доставка

Гарантия скорости поставки

Доставка материалов на участок фирменным транспортом «Вологодское зодчество»:

Мы выполняем более 18 рейсов в неделю. Это позволяет не зависеть от сторонних логистических компаний и соблюдать строительный график производства работ на объектах компании.

Все материалы надёжно упакованы в специализированные транспортные паллеты – это гарантия защиты от механических повреждений, влаги и других внешних воздействий на протяжении всего строительства.

Оформление товарно-транспортных накладных, счетов-фактуры, пропусков и иных транспортных документов производится сотрудниками компании. Наши застройщики не тратят личное время благодаря сервису компании.

Приёмка и разгрузка материалов производится прорабами компании, при участии квалифицированной бригады, что ускоряет начало строительства.

Все материалы всегда вовремя! Мы настроили регулярную доставку между Москвой, Петербургом и нашими проверенными поставщиками

icon

30 лет
гарантии

icon

Офис
в г. Санкт-Петербург

icon

Офис
в г. Москва

icon

Индивидуальное
проектирование

О проекте

Проект ВЗ-791 «Эверест» — это элегантный двухэтажный каменный дом площадью около 228 м², рассчитанный на 6 комнат. Этот дом сочетает прочность и презентабельность каменной кладки с продуманной архитектурой: строгие линии, массивные формы и выразительный силуэт делают его выразительным решением в коттеджном строительстве. Высокое качество отделки фасада и гармоничное соотношение объемов придают облику дома статус и надёжность.

Планировка создана для семейной жизни с удобствами всех поколений. На первом этаже размещены просторная гостиная-столовая с выходом на террасу, кухня и места для бытовых нужд. 

Второй этаж отдан жилым зонам: спальни с максимальным уровнем приватности, возможно — с выходами на балкон или лоджии. В квартире предусмотрены все необходимые санузлы, гардеробные и подсобные помещения. Архитектура дома направлена на то, чтобы каждый уголок был функционален и эстетичен.

Камень как конструкционный материал обеспечивает долговечность, минимальное обслуживание и устойчивость к климатическим нагрузкам. Дом из камня ВЗ-791 сохраняет тепло зимой и прохладу летом, благодаря высокой теплопроводности и плотности материала. Он прекрасно впишется в ландшафт, подчеркнёт статус владельцев и станет надёжным семейным очагом на многие годы.

А вот и построенные дома:

Лучший одноэтажный дом

Экскурсия по дому «Миллер»: продуманная планировка, уютная атмосфера и комфорт, который ощущается с первых минут.

Двухэтажный дом мечты

Обзор проекта «Флагман» — 170 м² из клееного бруса на монолитной железобетонной плите. Простор, стиль и надёжность в каждом элементе.

В гости к хозяевам «Энея»

Руководитель компании приезжает в готовый дом по проекту ВЗ-329 — компактный и уютный одноэтажный вариант для комфортной загородной жизни.

Больше построенных домов и видео тут

ПОСЕТИТЬ ОБЪЕКТЫ С ПРОРАБОМ

Проверить качество строительства

Выбрать материал для своего дома

Убедиться в квалификации сотрудников

*в Москве и С‑Петербурге

Экскурсия на стройку

Работа компании в режиме онлайн

Все камеры
Строительство дома в г. п. Рощино 172 м2 (клееный брус) СПБ
Строительство дома в с.п. Костинское 165 м2 (клееный брус) МСК
Строительство дома в к. п. Нордик хиллс 147 м2 (клееный брус) МСК
Площадка по рубке срубов (Вологодская область, Вологда)
Строительство дома в г. Краснозаводск 112 м2 (клееный брус) МСК
Строительство дома в к. п. Медвежье озеро 292 м2 (клееный брус) МСК
Строительство дома в д. Леоново 133 м2 (клееный брус) МСК
Строительство дома в д. Колычево 144 м2 (клееный брус) МСК
Строительство дома в к. п. Петергофские дачи 283 м2 (фарверх) СПБ
Вид из офиса

>25 лет

“Вологодское зодчество” строит дома из собственного леса

В Вологодской области — делянки, производство материалов и домокомплектов.

А строим в Московской, Ленинградской
и близлежащих областях.

Для этого в Москве и Петербурге
открыли офисы.

img map img

Ленинградская
область

Вологодская
область

Московская
область

С нами вы гораздо ближе к своему дому — и без “сюрпризов”

Смета окончательная

после подписания договора

Она не меняется ни на рубль, даже если сезонные цены и цены на материалы вырастут

Оплата по графику

с приемкой каждого этапа

Вы знаете, когда и сколько именно денег вам понадобится, поэтому можете планировать нагрузку

Ипотека от 6%

благодаря партнерству с РСХБ

Мы аккредитованы в ведущих банках,
наши проекты одобряют +
мы помогаем подобрать подходящий проект

Подробнее об условиях

Мы строим с 1998 года и точно знаем: одинаковых домов не бывает

Даже если мы построим два одинаковых дома «как на картинке», все равно остается разная почва (и фундамент), сезон и срок. Все это влияет на смету.

Но мы можем:
Рассчитать цену
дома

прямо по телефону

Несколько уточняющих вопросов и вы получите реальную цену под ваши параметры.

Посчитать дом
как на картинке

с разбросом 1-2%

Это вариант подойдет, если вы хотите дом точь-в-точь, как на фотографиях проекта.

Оптимизировать дом
под ваш бюджет

без потери качества

В любой понравившийся проект можно внести изменения.

1998

team
Связаться с нами

Буквально за 5 минут разговора вы станете ближе к своему дому.

team
Я согласен на обработку персональных данных

Мы вам позвоним
в течение 10 минут в рабочее время
и душевно пообщаемся.